PODPISANIE UMOWY UŻYCZENIA NIERUCHOMOŚCI
KLINIKA „BUDZIK” DLA DOROSŁYCH PRZY SZPITALU BRÓDNOWSKIM – PODPISANIE UMOWY UŻYCZENIA NIERUCHOMOŚCI
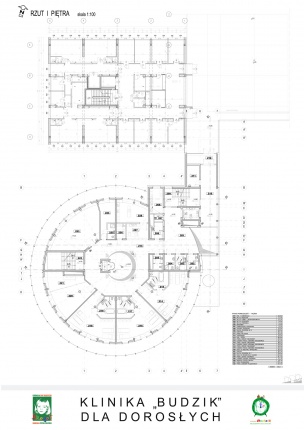
Ulica Kondratowicza 8 w Warszawie – to właśnie tu, powstanie Klinika „Budzik” dla dorosłych. Część nieruchomości o powierzchni 1 850 m2 została przekazana przez samorząd województwa w użyczenie Fundacji. To właśnie w nim otrzymają pomoc dorośli pacjenci w stanie śpiączki – po urazach neurologicznych. Będą hospitalizowani, leczeni i rehabilitowani. W klinice powstanie wiodący w kraju ośrodek badawczo-rozwojowy oraz szpital, w którym wykonywane będą pionierskie zabiegi medyczne i rehabilitacyjne. Ich celem będzie skuteczne „wybudzanie” dorosłych pacjentów.
23 lipca br. marszałek Adam Struzik, członek zarządu województwa Elżbieta Lanc, prezes fundacji Ewa Błaszczyk oraz zarząd Mazowieckiego Szpitala Bródnowskiego – Teresa Bogiel i Wiesław Malicki podpisali umowę użyczenia nieruchomości. W tym wydarzeniu również wzięli udział - Paweł Skowronek – dyrektor medyczny Mazowieckiego Szpitala Bródnowskiego oraz prof. Mirosław Ząbek – kierownik kliniki/kliniczny koordynator Kliniki Neurochirurgii Centrum Medycznego Kształcenia Podyplomowego w Mazowieckim Szpitalu Bródnowskim.
Klinika „Budzik” dla dorosłych wyposażona będzie w 18 łóżek oraz specjalistyczny sprzęt medyczny i rehabilitacyjny. Zbudowana zostanie na wzór dziecięcego „Budzika”, który funkcjonuje przy Centrum Zdrowia Dziecka w Warszawie. Projekt stworzyli Jacek Bolechowski i Krzysztof Popiński z Autorskiej Pracowni Architektury CAD Sp. z o.o.
Szczegółowe informacje: Informacja prasowa
Zdjęcia Robert Kielak
Realizacja Anna Błaszczyk BLASZANKA STUDIO
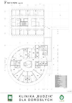
Ulica Kondratowicza 8 w Warszawie – to właśnie tu, powstanie Klinika „Budzik” dla dorosłych. Część nieruchomości o powierzchni 1 850 m2 została przekazana przez samorząd województwa w użyczenie Fundacji. To właśnie w nim otrzymają pomoc dorośli pacjenci w stanie śpiączki – po urazach neurologicznych. Będą hospitalizowani, leczeni i rehabilitowani. W klinice powstanie wiodący w kraju ośrodek badawczo-rozwojowy oraz szpital, w którym wykonywane będą pionierskie zabiegi medyczne i rehabilitacyjne. Ich celem będzie skuteczne „wybudzanie” dorosłych pacjentów.
23 lipca br. marszałek Adam Struzik, członek zarządu województwa Elżbieta Lanc, prezes fundacji Ewa Błaszczyk oraz zarząd Mazowieckiego Szpitala Bródnowskiego – Teresa Bogiel i Wiesław Malicki podpisali umowę użyczenia nieruchomości. W tym wydarzeniu również wzięli udział - Paweł Skowronek – dyrektor medyczny Mazowieckiego Szpitala Bródnowskiego oraz prof. Mirosław Ząbek – kierownik kliniki/kliniczny koordynator Kliniki Neurochirurgii Centrum Medycznego Kształcenia Podyplomowego w Mazowieckim Szpitalu Bródnowskim.
Klinika „Budzik” dla dorosłych wyposażona będzie w 18 łóżek oraz specjalistyczny sprzęt medyczny i rehabilitacyjny. Zbudowana zostanie na wzór dziecięcego „Budzika”, który funkcjonuje przy Centrum Zdrowia Dziecka w Warszawie. Projekt stworzyli Jacek Bolechowski i Krzysztof Popiński z Autorskiej Pracowni Architektury CAD Sp. z o.o.
Szczegółowe informacje: Informacja prasowa
Zdjęcia Robert Kielak
Realizacja Anna Błaszczyk BLASZANKA STUDIO














